京都市北区上賀茂中ノ坂町の中古一戸建
京都市バス「ゴルフ場前」停歩4分!
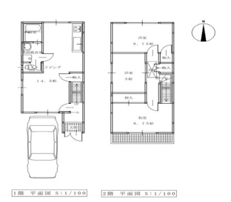
間取り3LDK!
駐車場あり!
令和5年1階フロアー・クロス改装済み!
ローンシミュレーションこの物件を購入した場合の、月々の支払い価格の一例です。借り入れを保証するものではございません。
- 返済期間
-
- 金利
-
- ボーナス時の増額(1回分)
-
- 借入金額:
-
- 頭金:
-

- 毎月の返済額:
(※元利均等方式 金利5.00%まで ※返済年数5~50年まで入力できます)
(※ボーナスは年2回で計算しています。1000万円まで入力できます)
(※物件購入時、その他諸費用が発生する場合がございます)
担当者のコメント 渋谷くん(仮)

- 【おすすめポイント】
★京都市バス「ゴルフ場前」停歩4分
★間取り3LDK
★駐車場あり
★令和5年1階フロアー・クロス改装済み
ポイント・特徴
物件概要
【中古一戸建】 物件番号:94576206 情報更新日:2026年04月08日 次回更新予定日:2026年04月22日| 所在地 | 京都府京都市北区上賀茂中ノ坂町 | ||
|---|---|---|---|
| 交通 | |||
| 間取り/詳細 | 3LDK/ | 建物面積(坪数) | 75.34㎡(22.79坪) |
| 価格 | 1,680万円 | ||
| 駐車場/月額料金 | 有/- | ||
| 土地の敷金/保証金 | -/- | 借地料/借地期間 | -/- |
| 土地権利 | 所有権 | 土地面積(坪数) | 67.42㎡(20.39坪) |
| 傾斜地部分面積 | - | 路地状敷地 | - |
| 私道負担面積/セットバック | 3.96㎡/- | 高圧線下面積 | - |
| 地目/地勢 | 宅地/- | 接道状況 | 一方(南西 私道 3.5m 間口 4.2m) |
| 建ぺい率/容積率 | 50%/80% | 用途地域 | 第一種低層住居専用 |
| 都市計画 | 市街化区域 | 種別/構造 | 中古一戸建/木造 |
| 階建 | 2階建 | 築年月(築年数) | 1994年 12月 (築31年) |
| 総区画数/販売区画数 | -/- | 向き | - |
| 現況 | 居住中 | その他の法令上の制限 | - |
| 取引態様/引渡時期 | 仲介/相談 | 建築確認番号 | - |
| 物件番号 | 94576206 | 取引条件の有効期限 | 2026年04月22日 |
| 設備条件 |
|
||
| 取扱会社 |
|
||
※地図上に表示される物件の位置は付近住所に所在することを表すものであり、実際の物件所在地とは異なる場合がございます。










