京都市上京区柏清盛町の中古一戸建
京都市バス「乾隆校前」停徒歩2分!
寺之内通りに面す!
間口広々11.7メートル!
ローンシミュレーションこの物件を購入した場合の、月々の支払い価格の一例です。借り入れを保証するものではございません。
- 返済期間
-
- 金利
-
- ボーナス時の増額(1回分)
-
- 借入金額:
-
- 頭金:
-

- 毎月の返済額:
(※元利均等方式 金利5.00%まで ※返済年数5~50年まで入力できます)
(※ボーナスは年2回で計算しています。1000万円まで入力できます)
(※物件購入時、その他諸費用が発生する場合がございます)
担当者のコメント 渋谷くん(仮)

- 【おすすめポイント】
★京都市バス「乾隆校前」停徒歩2分
★寺之内通りに面す
★間口広々11.7メートル
ポイント・特徴
物件概要
【中古一戸建】 物件番号:93155234 情報更新日:2026年04月08日 次回更新予定日:2026年04月22日| 所在地 | 京都府京都市上京区柏清盛町 | ||
|---|---|---|---|
| 交通 | |||
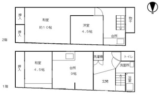
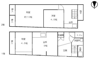
| 間取り/詳細 | 3DK/ | 建物面積(坪数) | 54.10㎡(16.36坪) |
| 価格 | 2,300万円 | ||
| 駐車場/月額料金 | 無/- | ||
| 土地の敷金/保証金 | -/- | 借地料/借地期間 | -/- |
| 土地権利 | 所有権 | 土地面積(坪数) | 44.16㎡(13.35坪) |
| 傾斜地部分面積 | - | 路地状敷地 | - |
| 私道負担面積/セットバック | -/- | 高圧線下面積 | - |
| 地目/地勢 | 宅地/- | 接道状況 | 一方(北 公道 7.2m 間口 11.7m) |
| 建ぺい率/容積率 | 60%/300% | 用途地域 | 準工業 |
| 都市計画 | 市街化区域 | 種別/構造 | 中古一戸建/木造 |
| 階建 | 2階建 | 築年月(築年数) | 1962年 4月 (築64年) |
| 総区画数/販売区画数 | -/- | 向き | - |
| 現況 | 空家 | その他の法令上の制限 | 準防火地域 |
| 取引態様/引渡時期 | 仲介/相談 | 建築確認番号 | - |
| 物件番号 | 93155234 | 取引条件の有効期限 | 2026年04月22日 |
| 設備条件 |
|
||
| 備考 |
高度地区・景観法・屋外広告物 建ぺい率が超過しています 増築未登記部分有り(1階・2階部分 計約25.58平米) 売主契約不適合責任免除 |
||
| 取扱会社 |
|
||
※地図上に表示される物件の位置は付近住所に所在することを表すものであり、実際の物件所在地とは異なる場合がございます。










