京都市左京区岡崎西福ノ川町の中古テラスハウス
京都市バス「岡崎道停」徒歩約7分!
京阪鴨東線「神宮丸太町駅」徒歩17分!
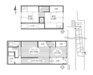
間取り3DK!
小さな隠れ家のような町家!
ローンシミュレーションこの物件を購入した場合の、月々の支払い価格の一例です。借り入れを保証するものではございません。
- 返済期間
-
- 金利
-
- ボーナス時の増額(1回分)
-
- 借入金額:
-
- 頭金:
-

- 毎月の返済額:
(※元利均等方式 金利5.00%まで ※返済年数5~50年まで入力できます)
(※ボーナスは年2回で計算しています。1000万円まで入力できます)
(※物件購入時、その他諸費用が発生する場合がございます)
担当者のコメント 渋谷くん(仮)

- 【おすすめポイント】
★京都市バス「岡崎道停」徒歩約7分
★京阪鴨東線「神宮丸太町駅」徒歩17分
★間取り3DK
★小さな隠れ家のような町家
ポイント・特徴
物件概要
【中古テラスハウス】 物件番号:97643845 情報更新日:2026年01月17日 次回更新予定日:2026年01月31日| 所在地 | 京都府京都市左京区岡崎西福ノ川町 | ||
|---|---|---|---|
| 交通 | |||
| 間取り/詳細 | 3DK/ | 建物面積(坪数) | 54.47㎡(16.47坪) |
| 価格 | 1,640万円 | ||
| 駐車場/月額料金 | -/- | ||
| 土地の敷金/保証金 | -/- | 借地料/借地期間 | -/- |
| 土地権利 | 所有権 | 土地面積(坪数) | 52.06㎡(15.74坪) |
| 傾斜地部分面積 | - | 路地状敷地 | - |
| 私道負担面積/セットバック | 3.91㎡/- | 高圧線下面積 | - |
| 地目/地勢 | 宅地/- | 接道状況 | 一方(東 公道 2.6m 間口 4.2m) |
| 建ぺい率/容積率 | 60%/160% | 用途地域 | 第一種中高層住居専用 |
| 都市計画 | 市街化区域 | 種別/構造 | 中古テラスハウス/木造 |
| 階建 | 2階建 | 築年月(築年数) | 1912年 1月 (築114年) |
| 総区画数/販売区画数 | -/- | 向き | - |
| 現況 | 空家 | その他の法令上の制限 | - |
| 取引態様/引渡時期 | 仲介/即時 | 建築確認番号 | - |
| 物件番号 | 97643845 | 取引条件の有効期限 | 2026年01月31日 |
| 設備条件 |
|
||
| 備考 |
※築年月:不詳(家屋評価調書によると大正元年(1912年)の記録有) ※私道負担:有・約3.91平米(現況に含まない) ※敷地面積(現況・仮測量):約41.64平米(約12.59坪) ※建物面積(現況・テープ測量):1階35.14平米、2階24.33平米、延べ59.47平米(約17.98坪) ※セットバック:約5.99平米 ※建物は老朽化が進んでいるため、使用に際しては修繕が必要です。 ※崖条例による規制有 |
||
| 取扱会社 |
|
||
※地図上に表示される物件の位置は付近住所に所在することを表すものであり、実際の物件所在地とは異なる場合がございます。










